1
/
of
4
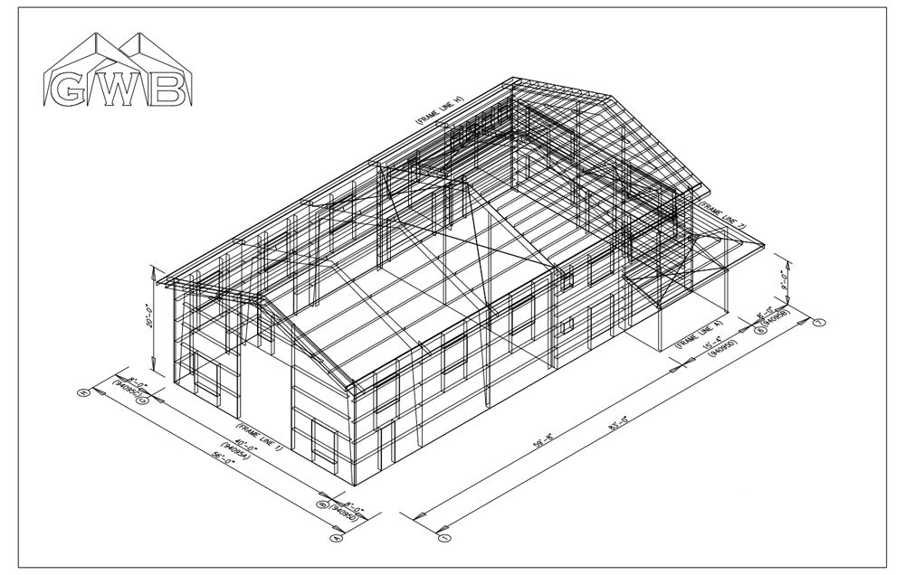
40 x 75 Barndominium Steel Building Kit
40 x 75 Barndominium Steel Building Kit
SKU:SKU: 94095
Regular price
$113,925.00 USD
Regular price
Sale price
$113,925.00 USD
Unit price
/
per
Shipping calculated at checkout.
Couldn't load pickup availability
40’ x 75’ x 20’
- 4:12 roof pitch
- Porch Roof & Supports
- 100 PSF Ground Snow Load
-
70 PSF Roof Snow Load
- Wind Load: 115 MPH
- Building Code: IBC-21
All Great Western Buildings come with a lifetime structural warranty, include engineer-stamped drawings, anchor bolt plans, and premium sculptured trim or gutters & downspouts.
NOTE: Pictured building includes optional accessories, including overhead doors, windows, and insulation. Accessories are available to be purchased from Great Western Buildings or from your favorite local supplier.
